Attraktive Renditechance – gepflegtes und größtenteils vermietetes Mehrfamilienhaus in guter Lage von Henfenfeld


  • Ort: 91239 Henfenfeld
  • Anzahl Zimmer: 15
  • Wohnfläche: ca. 460 m²
  • Grundstück: 689 m²
  • Baujahr: 1950/1990
  • Heizung: Gas
  • Endenergieverbrauch kWh/(m²*a) 116,7
  • Kaufpreis: 695.000 EUR


Objektbeschreibung


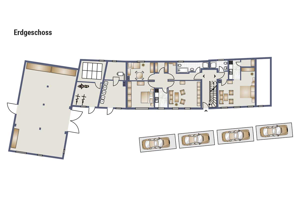
Auf einem Grundstück von 689 m² erstreckt sich ein gepflegtes Mehrfamilienhaus mit insgesamt acht Wohneinheiten mit insgesamt ca. 460 m², einer Lagerhalle mit ca. 100 m² Nutzfläche sowie Stellplätzen. Im Erdgeschoss befinden sich zwei Wohneinheiten, weitere zwei im 1. Obergeschoss und zwei im 2. Obergeschoss. Ergänzt wird das Angebot durch eine separate Wohnung im Dachgeschoss mit eigenem Zugang sowie eine weitere Einheit im Nebengebäude. Ein Teil der Wohnungen ist zuverlässig vermietet. Die Mietverträge liegen vor.
Das Wohnhaus liegt zentral in Henfenfeld, nur wenige Gehminuten von der S-Bahn-Haltestelle Henfenfeld entfernt. Das ursprüngliche Gebäude stammt aus dem Jahr 1950; ab dem Jahr 1990 erfolgten umfangreiche Umbau- und Sanierungsmaßnahmen, bei denen die ehemals landwirtschaftlich genutzten Flächen in Wohnräume umgewandelt wurden, das Dachgeschoss wurde ebenfalls ausgebaut.
Heute präsentiert sich die Immobilie in einem gut erhaltenen Zustand mit einem soliden Ausstattungsstandard. In den vergangenen Jahren wurden zudem kontinuierlich Modernisierungen vorgenommen, wodurch sich das Objekt in einem gepflegten Gesamtbild zeigt. Die vermieteten Wohnungen wurden aufgrund der Privatsphäre der Mieter nicht dargestellt, können jedoch besichtigt werden.
Dank der attraktiven Lage, der guten Verkehrsanbindung sowie der vielfältigen Nutzungsmöglichkeiten bietet dieses Objekt eine interessante Investitionsmöglichkeit für Kapitalanleger und Investoren.
Haben wir Ihr Interesse geweckt, dann fordern Sie gerne das ausführliche Exposé an – ein Besichtigungstermin kann kurzfristig vereinbart werden.

Lagebeschreibung


Henfenfeld ist eine reizvolle Gemeinde im mittelfränkischen Landkreis Nürnberger Land, eingebettet in die Metropolregion Nürnberg. Henfenfeld liegt zwischen den Städten Hersbruck und Lauf an der Pegnitz, etwa 25 km östlich von Nürnberg entfernt und befindet sich in der landschaftlich ansprechenden Region der Fränkischen Alb mit sanften Hügeln und Waldflächen.
Die Infrastruktur vor Ort ist durch den Kindergarten und die Grundschule Hammerbachtal gut abgedeckt. Vielfältige Einkaufsmöglichkeiten sowie medizinische Versorgungseinrichtungen wie Ärzte, Krankenhaus und Apotheken sind in Hersbruck und Reichenschwand bequem erreichbar. Mit der S-Bahn vom Bahnhof Henfenfeld gelangt man in rund 30 Minuten am Nürnberger Hauptbahnhof. Zusätzlich besteht mit der Buslinie 335 eine ÖPNV-Verbindung Richtung Hersbruck, Klingenhof und Offenhausen.
Die gut erhaltene Burg Henfenfeld - auch „Pfinzingschloss“ genannt - ist ein historisches Wahrzeichen der Gemeinde mit Schlossgarten und regelmäßigem Mittelalter-Markt. Die Heilwasser-Therme in Hersbruck mit Außenbecken und schöner Naturumgebung - ideal zur Entspannung - ist mit dem Auto in knapp 10 Min. zu erreichen. Hinzu kommen Spiel- und Abenteuerplätze wie der große Spielplatz an der Hauptstraße sowie zahlreiche Wander- und Radwege im Hammerbachtal, rund um Henfenfeld und dem nahegelegenen Hersbruck. Der Happurger Stau- und Baggersee ist unter 10 Min. erreichbar. Den Flughafen Albrecht Dürer erreicht man in ca. 30 Min.
Henfenfeld verbindet ländliche Ruhe, gute Ausstattung und sehr gute Verkehrsanbindung – ideal sowohl für familienorientiertes Wohnen als auch für eine zukunftssichere Kapitalanlage.