Gepflegtes Gewerbe- und Wohngebäude als lukrative Kapitalanlage


  • Ort: 91166 Georgensgmünd


  • Gewerbefläche: ca. 397 m²
  • Wohnfläche: ca. 102 m²
  • Grundstück: 438 m²
  • Baujahr: 1907/1978
  • Heizung: Öl
  • Endenergieverbrauch kWh/(m²*a) 190,6
  • Kaufpreis: 745.000 EUR


Objektbeschreibung


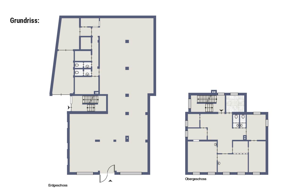
Diese exklusiv von uns zum Kauf angebotene Liegenschaft umfasst zwei Gewerbe-Einheiten, die sich über das Erdgeschoss und das Obergeschoss verteilen. Die vermieteten Flächen betragen ca. 387 m². Hinzu kommt im Dachgeschoss des Gebäudes eine Maisonette-Wohnung mit ca. 102 m² Wohnfläche. Insgesamt ein sehr gut durchdachtes Büro- Verkaufs- und Wohnkonzept. Die Lage im Ortskern von Georgensgmünd kann als ausgesprochen attraktiv bezeichnet werden.
Das Anwesen wurde ca. 1907 erbaut und stets sehr gut instandgehalten, der Anbau im Erdgeschoss wurde 1978 fertiggestellt. Das Flachdach des Anbaus wurde Anfang 2025 erneuert. Die weitläufige Gewerbefläche im Erdgeschoss erstreckt sich über insgesamt ca. 289 m². Der gut vermietete Verkaufsladen hat eine Größe von ca. 249 m², weitere Lagerräume, Personalsozialräume und Toiletten stehen ebenfalls zur Verfügung.
Über das großzügige Treppenhaus erreicht man die Büroräume des Obergeschosses mit einer Gewerbenutzfläche von ca. 108 m². Der repräsentative Empfang mit Besprechungsbereich sowie vier weitere Büroräume und zwei kleinere, individuell nutzbare Zimmer stehen auf dieser Etage zur Verfügung.
Das Raumangebot des Dachgeschosses erstreckt sich über eine Wohnfläche von ca. 102 m². Ein besonderes Wohlfühlambiente prägt der großzügige Wohn -/ Essbereich mit Kaminofen, der eine besonders angenehme Atmosphäre der Wohnung prägt. Das helle Schlaf- /Kinderzimmer, eine funktionale, voll ausgestattete Küche mit ausreichend Stauraum sowie ein zeitloses Bad, das mit Wanne, Waschtisch und WC ausgestattet ist, komplettieren diesen Wohnbereich. Über die Treppe gelangt man in das helle Studio, das zusätzlichen Wohnraum und besonders variable Nutzungsmöglichkeiten bietet.
Komplettiert wird dieses Anwesen von einer Einzelgarage und einem davorliegenden Stellplatz. Die Beheizung erfolgt über eine Öl-Zentralheizung aus dem Jahr 1995.
Haben wir Sie neugierig gemacht, dann fordern Sie gerne das Exposé an. Ein Besichtigungstermin kann zeitnah vereinbart werden.

Lagebeschreibung


Georgensgmünd ist eine wirtschaftlich prosperierende Gemeinde mit 6.800 Einwohnern und einem hohen Freizeitwert sowie mit einer hervorragenden Infrastruktur und liegt zentral im Herzen des Fränkischen Seenlandes.
Innovative und internationale Unternehmen haben sich in dem aktiven Gewerbegebiet angesiedelt und werben mit vielseitigen Arbeitsplätzen. Hier konzentrieren sich Gewerbe, Handel, Handwerk und Industrie.
Die Gemeinde bietet mit ausreichend Kindergarten- und Kinderkrippenplätzen ein familienfreundliches Umfeld. Die Grund- und Mittelschule mit den jeweiligen Ganztages- , Spiel- und Freizeitangeboten hat die Attraktivität als Wohnort für Familien gestärkt. Zahlreiche Supermärkte, Fachgeschäfte, Gesundheitsangebote und Ärzte sind direkt vor Ort ansässig. Die umliegenden Gaststätten laden zu fränkischen Spezialitäten ein. In Georgensgmünd ist damit alles geboten, was sich das Herz nur wünschen kann.
Die Kreisstadt Roth liegt nur ca. 10 km von Georgensgmünd entfernt. Über die B2 erreicht man die Autobahnanbindungen A9 und A6. Mit dem Regionalzug (Strecke Nürnberg- Treuchtlingen-München) gelangt man in nur 32 Minuten zum Hauptbahnhof Nürnberg. Auch mit dem Auto fährt man über die Bundesstraße B2 in weniger als einer halben Stunde nach Nürnberg.
Die Nähe zum Brombach-, Roth- und Altmühlsee macht es möglich, viele Wassersportarten auszuüben. An den zahlreichen Stränden findet man umfangreiche Bademöglichkeiten. Sofern Sie einfach Ruhe suchen, können Sie in den umliegenden Wäldern an der malerischen Rezat ausschweifend spazieren gehen und die Natur genießen. Dort können Sie Aktivitäten ausüben, wie Wandern, Biken, Golfen, Segeln und vieles mehr. Mit dem Freizeitpark ”Am Bruckespan” sowie dem neuen Sport- und Kulturzentrum Papiermühle, den Sehenswürdigkeiten, einem bunten Vereinsleben und der zentralen Lage im Fränkischen Seenland lässt Georgensgmünd der Freizeitgestaltung einen sehr hohen Stellenwert zukommen. Ebenso sind Kunst und Kultur ein wichtiger Eckpfeiler der Ortskultur. Hier, am Zusammenfluss von Fränkischer und Schwäbischer Rezat, vereinen sich „Wohnen & Arbeiten zu Lebensqualität“.